お施主様インタビュー

健やかな日常を過ごす安心安全の家

帯広エリア帯広エリア

ロゴスホーム

健やかな日常を過ごす安心安全の家

子どもたちがのびのび遊べて、僕たちも優しい気持ちで子育てに向き合える。そんな家づくりが叶いました。夢のビルトインガレージでは僕自身、のびのびと趣味の時間を楽しんでいます(笑)

陽光がたっぷり降り注ぐリビングは天井が高く、開放感のある広々空間に

転職を機に帯広に移り住んで半年ほどで、家を建てることに決めました。長女が生まれてマンションだと少し手狭になったのと、ローンを組むにもちょうどいい年齢かなと、いうタイミングではありましたが、縁もゆかりもないこの街でマイホームを持とうと思ったのは、我ながらチャレンジ(笑)。幸い希望の条件に合った土地をロゴスホームさんからご提案いただき、「それならば」と覚悟を決めました。

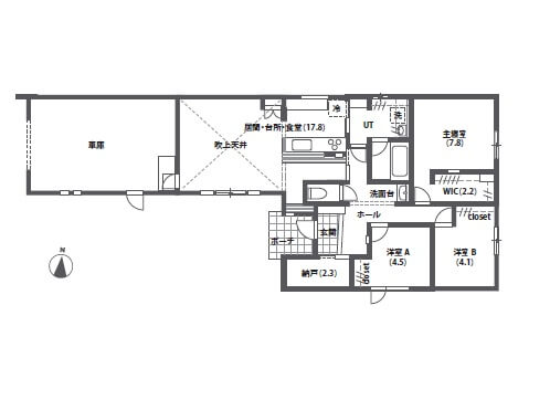
まだ子どもたちが小さく、特に長男は目が離せない時期です。階段はもちろんのこと、目の届かない場所で危ないめに遭うリスクをなるべく減らしたかったので、妻とは家を建てるなら平屋がいいね、と話していました。自分たちが年をとって足腰が弱くなった時に2階が物置のようになるのも嫌でしたし、平家のほうが隅々まで有効にスペースを使えるのではないかとも。

間取りについては生活動線をイメージしていろいろ考えましたが、まずこだわったのは家の中心にくるリビング。立地上、隣接する土地に高い建物が立つ可能性があるので、出来るだけ光を取り込めるように設計し、明るく、広々とした空間づくりを意識しました。子どもたちが中学生、高校生になっても、気持ちよく過ごせる団欒の場であって欲しい、そんな思いもあって天井を高く取り、開放感のあるリビングに仕上げてもらいました。

家事や手入れの負担をできるだけ軽くして、ご機嫌に子育てを楽しむ工夫も

今は暮らしの中心に「子育て」があります。私自身、とにかく毎日バタバタしていて、なかなか自分の時間を取るのが難しい時期ですが、この家で暮らすようになって少し気持ちに余裕が生まれました。細かいことですが、キッチンに食洗機を付けたことで、家事の負担はずいぶん軽減された気がします。キッチン収納もたっぷり確保したので、モノがスッキリ片付いている状態がキープしやすくなりました。また、通常高い位置にあるウォールキャビネットはギリギリまで位置を下げて、しっかり活用できるようにしました。ほぼすべての収納に手が届くので、眠っている道具もありません。

さらにこまめにケアをしないと劣化が進んでしまうような素材は使わず、ステンレス素材を採用したのも、掃除やお手入れのしやすさを優先したからです。毎日の「やらなくちゃ」を少しずつ減らしたことで、気持ちよくキッチンに立つことができるようになりました。 また、間取りを考える過程でも、以前暮らしていたマンションで負担と感じるまでではないけれど、子育てをする上で日々小さなストレスになっていたことをできるだけ解消するための工夫を施しました。例えばリビングと子ども部屋が隣接していると寝かしつけが終わるまで気を遣ったり、常にリビングにオモチャが散らかっていたり、ベランダや段差など子どもたちにとって危険な場所もありました。今は子どもたちが走り回っていても安全ですし、寝かしつけたら、リビングに移動して束の間ですが夫婦でのんびり過ごす時間も取れるようになりました。子ども部屋の1つをおもちゃ置き場にしているので、リビングが散らかることもなくスッキリ暮らせている感じがして、とても快適です。おかげで機嫌よく子育てに向き合えるようになりました。

憧れのビルトインガレージで趣味の時間を思いっきり満喫しています

ビルトインガレージは、僕の遊び場兼車庫として作りました(笑)。家の中に趣味のダンスを練習する場所が欲しかったのと、大好きなDIYやモノづくりを、思う存分楽しめるアトリエのような作業場に憧れて作った夢の空間です。とはいえ、家の中の一部屋のような感覚で、家族の気配を身近に感じられるのはビルトインガレージならでは。釣りやアウトドアの道具やウエアなど、僕の趣味のアイテムはすべてこの中に収納しています。

遊び場の機能が充実していく一方で、妻からは「パパの趣味の道具に占領されて、車庫入れの難易度が高い」とクレームも(笑)。それでも好きなことに没頭できる場所を好きに作らせてくれた妻には、本当に感謝しています。

今は僕の遊び場ですが、子どもたちが大きくなったらガレージで一緒に遊んだり、ダンスを練習したり……そんな未来を想像するのも楽しいですね。

建具はすべてパナソニック製。和モダンなしつらえを家づくりのポイント

わが家の家づくりはあえて低コストのプランを選択して、こだわりたい部分をカスタマイズしていく方法を選びました。ベースのコストを抑えて、オプションを加えていくイメージです。

リビングに置いたダイニングテーブルを気に入って購入し、それに合わせて、家をデザインした部分もあったので、随所に和モダンを意識したしつらえを加えて、ポイントにしました。

玄関を入ってすぐの正面には妻の希望で、ちょっとしたディスプレイを楽しめる床の間風の飾りを加えたり、インテリアに馴染むパナソニック製の建具を採用したり……。

ここは妥協したくないという部分にはしっかり予算をかけて、理想を実現できるのもロゴスさんならではの魅力と実感しています。

子育てをしやすい安心安全な環境を整えつつも、子どもたちが巣立ったあとの暮らしを見据えて、自分たちの「好き」を詰め込んだ家づくり。
いろいろ悩んだり、迷ったりもしましたが、納得のいく住まいを手に入れることができて、本当にうれしく思っています。